HODLER ‘22

Visualization: Studio Habite

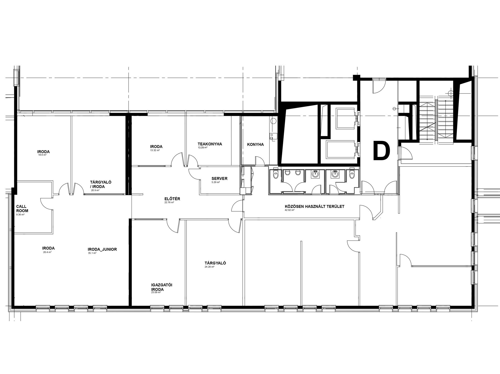
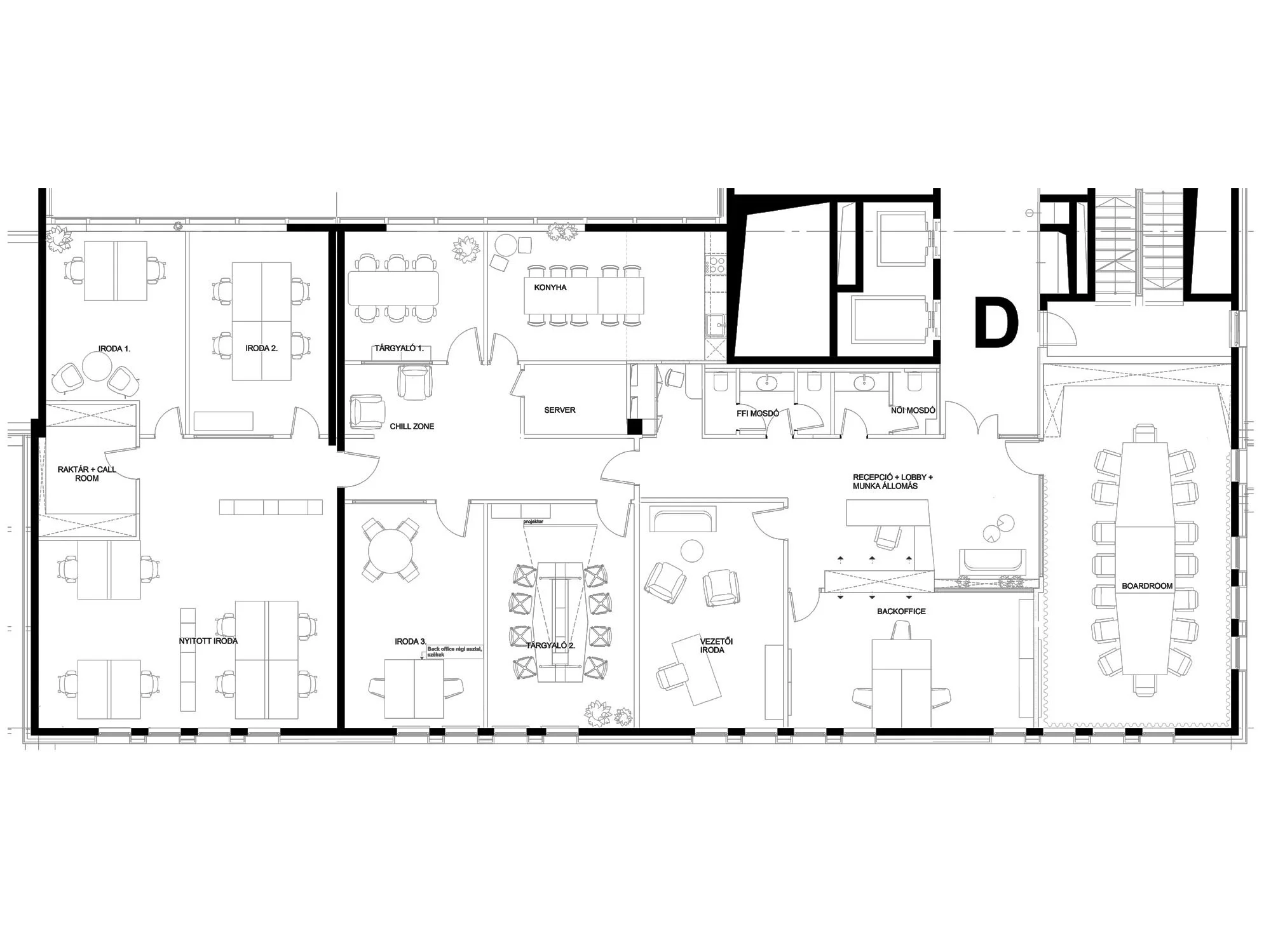
The precision and elegance characteristic of the financial and investment world meet the organic, natural elements of agriculture.

In the context of an office expansion, we were commissioned to provide comprehensive interior design and project supervision, which also encompassed a complete refresh of the corporate group’s brand identity.

It was particularly important that, alongside functional use, the values and vision of the company are reflected in the new interior, creating a space that embodies both professionalism and a sense of natural harmony.

Previous
Previous

dunagrande x flat

Next
Next

paskal x flat